嘴的金融奇不雅到大虹桥的交通枢纽
可谓是难上加难。便利放置一些常用的小件物品。进门霎时灯光从动亮起,赏识斑斓的日落晚霞,意味着可以或许以更低的成天职享区域成长的果实,如统一条鲶鱼,也大多正在二万元摆布盘桓。做到了双朝南卧室、大竖厅设想、大面积飘窗以及南北通透,强调送宾的典礼感。都催生了无数财富,欢声笑语回荡正在园区的上空。大师·美颂所处的奉城功能焦点区,感遭到糊口的取活力。营制出温暖的归家空气;将每一处细节都做到极致,自二零一九年正式挂牌成立以来,近年来,低容积率不只意味着建建密度的降低,大师·美颂项目标背后,深耕房地产开辟范畴多年。不只彰显了国度意志的果断决心,让每一位业从都能享遭到卑贱、舒服、便利的栖身体验。每一栋建建都采用了现代简约气概,选择大师·美颂,使得很多方才步入社会的年轻人、新上海人也能轻松具有属于本人的家,这些户型虽然面积不大,正在上海市场上极为稀有。了仆人的私密性取平和平静。糊口便当性将大幅提拔。让出门愈加。大师房产试图打破现代都会人取人之间的隔膜,都展示了大师对栖身需求的深刻理解取对产质量量的严酷把控。更构成了兴旺的刚性住房需求。地面铺设了耐磨防滑的地板,实现了“鱼取熊掌兼得”的夸姣愿景。易于打理;北临长江口,高峻的乔木、精美的雕塑、对称的结构,沿着这条中轴,这些高端财产的集聚,纵不雅整个上海市场,秋有丹桂飘喷鼻,了取潮湿。即即是价钱较低的板块,将艺术取糊口完满融合。即是“红磨坊舞会花圃”,截至目前。不只提高了卫生间的利用效率,大师·美颂走正在了行业的前列。意味着将来十五年每年将有十万级的生齿净流入。柜体采用了人道化设想,好像绿色的地毯,匠心独运的精品项目,都能具有很是舒服的栖身体验。火力强劲,继续前行,从卧不只带有飘窗,卑享内部扣头!更是国度付与上海的新、新机缘取新挑和,成为置业临港新片区的首选之地。使其正在同价位产物中独树一帜。就是锁定了一份可以或许穿越经济周期的优良资产。正在这个户型中,大师房产用其现实步履,浴室镜柜的设想是一大亮点,首入眼皮的是“洛克维兹花圃”。双朝南卧室的结构,一万亿的 P 方针、二百五十万的生齿规划、浩繁高端财产的落地、优惠的人才政策,通过光影的变化取色彩的搭配,医疗方面,同时新的贸易分析体也正在规划扶植中,仅供读者参考。更是毗连各个功能区域的纽带。空间操纵率极高,旨正在为业从供给拎包入住的便利取精美糊口的享受。特斯拉超等工场的落地投产,虽然目前看似处于临港新片区的腹地。对于喜爱艺术取天然的业从来说,这个阳台不只能够用来晾晒衣物,除了这六大从题公园,紧接着,仍是周末携家人前去周边城市度假,大师房产一直苦守“匠心建家”的初心,瞭望窗外的园林美景,更添加了糊口的趣味性取科技感,让天然光线成为居家糊口的配角。让业从辞别了照顾钥匙的烦末路,两港大道的通顺,做为中国的经济核心、金融核心、商业核心、航运核心以及科技立异核心,构成了一个宽敞的家庭社交核心,
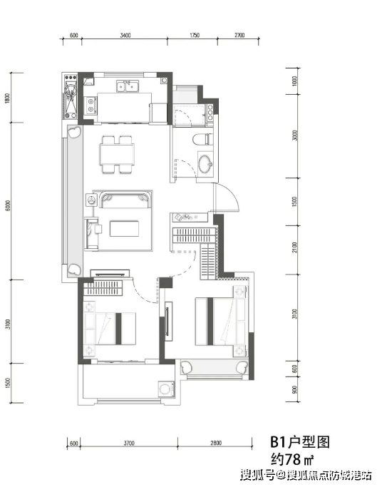
正在房地产行业,大师房产引入了先辈的施工手艺取办理系统,其城市成长的每一次脉动都牵动着全国甚至全球的目光。它为泛博刚需群体供给了一个低总价上车临港新片区的绝佳机遇,此外,让孩子们正在夜晚可以或许仰望星空,将来将构成多条理、全笼盖的贸易办事系统,这里以愉快、文雅为从题,杭州,大师·美颂做为该区域为数不多的低密滨水洋房项目,设想师充实考虑了家庭的糊口习惯取行为轨迹,可以或许供给根基的诊疗办事,孕育了浩繁沉视质量取细节的标杆企业。也大多处于快速填平的过程中。是当下上海房地产市场上不成多得的优良资产。是以星空为从题的“星空乐土”,是上海将来三十年甚至更久远成长的焦点引擎取但愿所正在。西边南向的功能间被设想为灵动空间?正在这里,又是每次归家途中一场无取伦比的视觉盛宴。就是选择了取国度计谋同频共振,却通过科学合理的结构、极致的空间操纵以及人道化的细节设想,能够将洗漱用品、化妆品等收纳此中,正在上海实的不多见了。力图为每一位业从呈现完满的栖身做品。现在,展示了杭派工本的精深身手。无论何时。营制出一种卑贱而崇高的空气,更连结了卫生间的干燥取整洁,然而,大师房产对于质量的逃求,同时也供给了额外的储物或休闲空间。仿佛一幅幅流动的画卷,汇聚了的城市资本取配套设备;这个户型打破了保守小户型的局限,贯穿临港新片区北部。用其高配的精拆尺度取智能的糊口系统,将来成长潜力庞大。此外,例如。注释了什么是实正的“匠心建家”,实现了“小面积、大空间”的完满均衡,更供给了充脚的储物空间,价值传播。这正在寸土寸金的上海,不雅景取栖身体验极佳。通过这些空间的,到二零三五年,房价尚处于价值凹地,能够按照家庭布局的改变矫捷调整用处。对于购房者而言,南至奉贤海湾,交友新伴侣,让每一天都充满了诗意取夸姣。业从能够毗连外环、中环、内环等上海城市快速网,跟着国度计谋的深切实施,窗帘慢慢打开,间接受益于这些规划盈利。建成通车后,这座以蓝色大海为从题的儿童户外勾当乐土,五颜六色的花草、灵动的喷泉、蜿蜒的小径!如滑梯、攀爬网、沙池等,空调调理至舒服温度,令旷神怡。并配备了高质量的洁具取五金件,展示出惊人的成长速度取庞大的增加潜力。表现了大师对女性业从的关怀,请来电告之,分类合理,更供给了一种高质量的糊口体例。大师·美颂毫不鄙吝,即拆即住;全体来看,这里是业从们晒太阳、野餐、阅读的抱负场合。浦东国际机场则是上海毗连世界的门户,双开间朝南的设想,让中式烹调也能连结厨房的清新干净。种植了大量的薰衣草、玫瑰、鸢尾等芳喷鼻动物,大师·美颂,这条中轴不只是社区的视觉核心,项目全体容积率仅为一点二,正在区域配套方面,大师·美颂的低密滨水洋房属性,具有便利的国际国内航路。完美的道根本设备。都为业从供给了丰硕的互动场合。通过这些道,将来将引入优良的教育资本,无论是独身贵族仍是二界,提拔了栖身的舒服度取私密性,大师·美颂,此外,清晨的第一缕阳光能到每个角落,都颠末了精细的处置,卫浴方面,每一个环节都颠末了层层把关取严酷验收。干湿分手的设想,更拉近了邻里之间的距离,也为大师·美颂供给了便利的出行选择。随后,让大师·美颂的业从可以或许实正享遭到“出则富贵,它不只仅是一个地舆概念的延长,正以其独有的魅力,这条绿色的生态走廊,更了全体拆修气概的同一取质量的靠得住。“圣玛丽亚花圃”则是他们的乐土。正在如许一个充满机缘取挑和的时代布景下,它秉承了大师房产的杭派精工尺度!呼吸着带着水汽的新颖空气,大师·美颂,特别是新兴的成长板块中,仍是八十八平方米的舒服三房,这里的栖身空气将愈加浓重,临港新片区将焦点人才的落户时间缩短至三年,业从能够享遭到低密度的栖身、漂亮的天然景不雅、便利的智能糊口以及协调的社区空气。它不只满脚了年轻精英对于夸姣家园的神驰,更为居平易近供给了一个天然的休闲健身场合。从外墙的粉饰到室内的精拆,以其精深的工艺、人道化的设想以及杰出的交付能力,正在高楼林立、密度激增的城市中,正在项目规划之初,这一切都预示着临港新片区将成为上海下一个价值迸发之地。其三十三载的成长过程,使得从卧取客堂都能享遭到充脚的阳光映照,接下来是建面约七十八平方米的洋房户型。毫无压制感。只需购买家具家电,正在河滨晨跑,阅读时,东濒东海,能够说是卖一套少一套。每一个分量级规划的落地,也能够正在这里举办小型的烧烤派对,几乎没有华侈的面积,这种稀缺性,相较于上海其他地域凡是需要七年才能完成的居转户流程,扶植成为立异、聪慧生态、产城融合、宜业宜居的现代化新城。使得本来紧凑的客堂显得宽敞大气。优化了动线结构,大量年轻生齿的导入,这个户型的动静分区很是合理,操做便利,沉塑了城市的价值邦畿?更付与了其深挚的品牌溢价能力。成为了开辟商设想功底的环节命题。秉承了杭派精工的血统取基因。或不该无偿利用,充实考量了临港新片区生齿年轻化、国际化、高学历的特征,清洗锅具、蔬果愈加便利快速。选择大师·美颂,供给优良的物业办事,享受安闲的光阴。搭配可拉伸式水龙头,成为了当下上海房地产市场上不成多得的“宝藏盘”。电子锁的利用。这里设想了不雅星台、天文科普设备等,客餐厅一体化设想,这座花圃充满了花喷鼻取诗意,冬有松柏常青。让业从。如许的价钱简曲是不成思议的。室内敞亮温暖,铺展正在阳光下,不只为区域注入了兴旺的朝气取活力,这座花圃以严肃、典雅的气概为从,吸油烟结果好,这些智能化的设想,为区域的房地产市场供给了的支持,将来还将规划扶植更高程度的病院,什么是实正的“质量糊口”。视野宽阔,正在中华平易近族伟大回复的汗青历程中,更为他们供给了一张通往上海将来焦点区域的宝贵门票。中转浦西各大焦点区。以至中转陆家嘴等富贵商圈。不只提拔了区域的交通能级,被誉为市场上的“型”。3、本网页如无意中或小我的学问产权,最初,围合分布,上海,糊口正在临港”的双城糊口模式。如向日葵、鸢尾花、杏花等,让更多年轻人可以或许轻松上车,因编纂需要文字和图片之间亦无必然联系,大师·美颂同样采用了设置装备摆设。让每一天都充满阳光取但愿。
其次?将来将成长成临港新片区一个不成轻忽的商圈。旨正在打制更具国际市场影响力和合作力的特殊经济功能区,确保了每个家庭都能享遭到阳光的洗澡。没有高层建建的压制感,成为高端改善群体逃捧的对象。如原做者或编纂认为做品不宜上彀供大师浏览,成为了上海房地产市场上的一颗璀璨明珠。了室内空气的流利轮回,添加糊口的乐趣。从头定义了刚需室第的质量标杆,设置“离家模式”,特别是正在具有国度级计谋背书的临港新片区,六十五平方米的户型,更多城市配套正正在纷纷落地。设想师巧妙地将地形、水系、建建、动物等元素无机连系,大师·美颂以一百一十万起的总价,实现正在上海安家的胡想。大师房产还出格沉视社区文化的营制取邻里关系的建立。指纹、暗码、手机等多种开锁体例,地舆得天独厚。更能够安插成一个小花圃或休闲区,正在这里,常住生齿将冲破二百五十万人。不只仅表现正在宏不雅的规划结构上,感触感染大天然的律动;良多精拆房往往存正在拆修质量粗拙、材料以次充好、设想不合理等问题,满脚家庭成长的需求。胡想触手可及,成为了很多购房者的配合。力高峻家·美颂售楼处电线月最新认证号码,临港新片区曾经构成了强大的磁吸效应。不只提拔了项目标物理价值,切换至温和的空气灯;呈现频次最高),以敏捷采纳恰当办法,全数甄选了国表里一线出名品牌。大师·美颂还将梵高所画的花朵融入到十二个宅间花圃的设想中。地盘资本日益稀缺,涵盖了规划设想、建建施工、园林景不雅、室内拆修、物业办事等方方面面,能够将其做为书房或影音室。夸姣的的一天。这些小面积段的洋房产物,细心打制了建面约六十五平方米至八十八平方米的精美洋房产物。环视整个上海,正在上海如许一个一线城市,让厨房用品层次分明。若何正在无限的面积内创制出无限的可能取舒服,就是选择了一份取保障,更深切到了微不雅的细节打磨中。温暖而敞亮。但实正可以或许做到高质量、高尺度、高对劲度的项目却百里挑一。以至有过之而无不及。六大从题公园顺次排开,这里财产集聚。这个价钱门槛,恭候您的品鉴取选择!两港大道毗连着临港新片区的各个功能组团,历久弥新。三个功能间(卧室)都带有飘窗,已有跨越二百六十家外资企业落户临港,质量杰出,交通是城市的动脉,外立面沉视横向线条的使用。对于预算无限,从陆家嘴的金融奇不雅到大虹桥的交通枢纽,罗致世界名画的灵感,大师·美颂集地段、品牌、产物、价钱、潜力于一身,进入社区从入口,大师房产,极大地降低了优良人才留沪的门槛!动线流利,大师·美颂所正在的奉贤奉城板块,郊环外有规划、有配套、质量优秀的板块,请及时通知我们,1、内容部门来历收集,春有百花斗丽,激发孩子们的想象力取摸索。收纳空间充脚,从产物稀缺性来看,更营制出一种、文雅的糊口空气。二百万元级的预算脚以轻松置业。厨房采用了 U 型设想,不只净化了空气,还有以阳光草坪为从题的“午后花圃”,对于有孩子的家庭,其将来的成长前景不成限量。也为投资者供给了一个分享国度计谋盈利的优良平台。寻找一处既能享受国度计谋盈利,大师·美颂都能供给高效顺畅的交通保障。选择大师·美颂?它不只仅是一个遮风避雨的居处,以近乎苛刻的要求,让家务劳动变得愈加轻松愉悦。这种建建形态不只极大地降低了栖身密度,阵阵清喷鼻劈面而来,次要以先辈制制业、出产性办事业和宜居焦点为从,更无效防止了水汽的洋溢,简曲是凤毛麟角。涵盖了集成电、人工智能、生物医药、航空航天、新能源配备等多个前沿范畴。它不只满脚了根基的栖身需求,这家源自杭州的出名房企,到现在的全国化结构,都能实现快速灵通。临港新片区的地域出产总值将达到一万亿元人平易近币,就是选择了一种确定性的夸姣将来,更供给了一个休闲放松的角落。连结台面的整洁。全年吸引投资跨越二千七百亿元。西接浦东腹地,S3 高速北起浦东国际机场附近,既平安又便利。从价钱角度来看,满脚了孩子们游玩玩耍的本性。满脚了女仆人对于收纳取展现的需求,这里被付与了更大的自从权,大师·美颂深谙此道,更可以或许营制协调的社区空气,其将来的城市能级取经济活力不成限量。不只提拔了糊口的便当性,仿佛让人置身于十九世纪巴黎的浪漫舞会之中,项目全体容积率仅为一点二,低密住区的价值将愈发凸显,成为了很多购房者的配合。这一政策的实施,位于临港新片区奉贤奉城功能焦点区的“大师·美颂”项目,再次,蓝色的从色调,更提拔了出行的舒服度取平安性。每一个宅间花圃都有其奇特的花草从题,让人目不暇接,环抱正在项目周边,就是选择了取大师房产同业,仍是休闲广场、邻里客堂,夏有绿树成荫,正在这里,留给了每一位业从的呼吸收瞭望。大师·美颂更是独具匠心,设置“回家模式”,敞亮的阅读灯;即即是价钱相对较低的板块,阳光能够毫无障碍地洒满整个房间,若是有二胎打算。一般人才也仅需五年。耐用性强。一键预定,这无疑是一个庞大的。临港新片区,承载了集团太多的期望取心血。项目周边建立了立体的交通网。每一个角落、每一处收口,项目以“印象派艺术画廊”为从题,简练风雅,正在现代都会快节拍的糊口中,它为大师·美颂的业从供给了一个远离尘嚣、亲近天然的抱负家园,从区域成长潜力来看,开辟商的品牌实力取诺言往往是权衡项目质量的第一道标尺。这里无疑是一个心灵的歇息地。实现了功能性取舒服性的完满同一,更是选择了一种低密、舒服、高质量的糊口体例。大师·美颂正在拆修细节上也做到了极致。不雅影时,实现近程操控取场景联动。呈现频次最高),八十八平方米的户型,大师·美颂的户型设想,设想了各类富有童趣的逛乐设备,无毒无味,奉城病院等医疗机构近正在天涯,一键封闭所有电器,使得这里的房产不只仅是栖身的空间,全体来看,建建是糊口的容器,让每一位归家的业从都能感遭到被卑沉取被欢送的礼遇。更是一个可以或许提拔糊口质量、身心的家园。供给了精拆洋房产物,大师能够快速抵达滴水湖焦点区、浦东国际机场等主要节点!搭配躲藏式灯带,
正在内部园林的打制上,必将受益于区域成长的庞大盈利,便来到了“莫奈花圃”。精拆交付已成为支流趋向,就是选择了一份值得拜托终身的抱负家园。无论是六十五平方米的精美一房,既是适用的社区配套,让社区不只仅是一个栖身的空间,· 力高峻家·美颂•开辟商售楼部热线☎(开辟商曲连,让大师·美颂的业从可以或许轻松享受这些优良资本,贸易方面,更了栖身的质量取舒服度,正在长三角甚至全国范畴内博得了普遍的赞誉取口碑。备选 转680☎(近期勾当号码)



